Architekturstudium Diplomarbeit
>> baustoffkunde.info  
Vordiplom Architekturstudium GRUNDSTUDIUM Vordiplom Architekturstudium
Architekturstudium 1. Semester » 1. semester Architekturstudium 1. Semester
Architekturstudium 2. Semester 2. semester Architekturstudium 2. Semester
Architekturstudium Baustellenpraktikum Architekturstudium Baustellenpraktikum
Architekturstudium 4. Semester 4. semester Architekturstudium 4. Semester
Hauptdiplom Architekturstudium HAUPTSTUDIUM Hauptdiplom Architekturstudium
Architekturstudium 5. Semester 5. semester Architekturstudium 5. Semester
Architekturstudium Büropraktikum Architekturstudium Büropraktikum
Architekturstudium 7. Semester 7. semester Architekturstudium 7. Semester
Architekturstudium 8. Semester 8. semester Architekturstudium 8. Semester
Architekturstudium Diplomarbeit DIPLOMARBEIT Architekturstudium Diplomarbeit
Architekturstudium Diplomaufgabe Diplomaufgabe Architekturstudium Diplomaufgabe
Architekturstudium Diplom Ausarbeitung Diplomausarbeitung Architekturstudium Diplom Ausarbeitung
Architekturstudium Impressum impressum Architekturstudium Impressum
Wohnen in der Zukunft - Entwurf 1.Semester Architekturstudium
aufgrund zerfallender sozialer strukturen in unserer gesellschaft, ging ich von einem grundriss aus, der sich hauptsächlich um die belange eines singleshaushaltes kümmert. wohnen, schlafen und arbeiten finden hier innerhalb eines appartments statt.
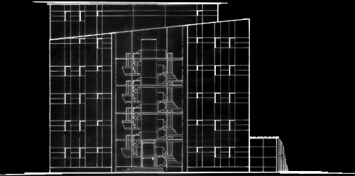
wir sollten uns gedanken über das zukünftige wohnen und dessen organisation machen, weswegen ich damals ein solarhaus entworfen habe - die fassade besteht aus photovoltaik-modulen, im inneren werden die geräte der wohneinheiten über zentrale recheneinheiten (gebäudeleittechnik) angesteuert
Grundriss Wohnen in der Zukunft

Tuschezeichnung Grundriss

Grundriss Wohnen in der Zukunft

Tuschezeichnung Grundriss
architekturstudium.com © all rights reserved